• Начало
  • За нас
  • Проект Обеля
Harmonyhouse
  • Начало
  • За нас
  • Проект Обеля
Kонсултация

ПРОЕКТ ОБЕЛЯ

Harmony House – Комплекс „Обеля“

 

 

 


Дом сред тишина, светлина и уют – само на крачка от града

В тихата част на кв. Обеля, върху собствен парцел от 2 000 кв.м, създаваме семеен комплекс от 4 къщи-близнаци, разположени в два хармонични реда. Всяка къща е с площ от 160 кв.м, на два етажа, с внимателно премислено разпределение и усещане за дом, което започва още с първата крачка навътре.

Изградени от естествено дърво по технологията на Honka, къщите носят топлината на скандинавския уют, съчетан с модерен комфорт и устойчивост. Това не са просто постройки – това са домове, в които се живее леко, здравословно и пълноценно.

 


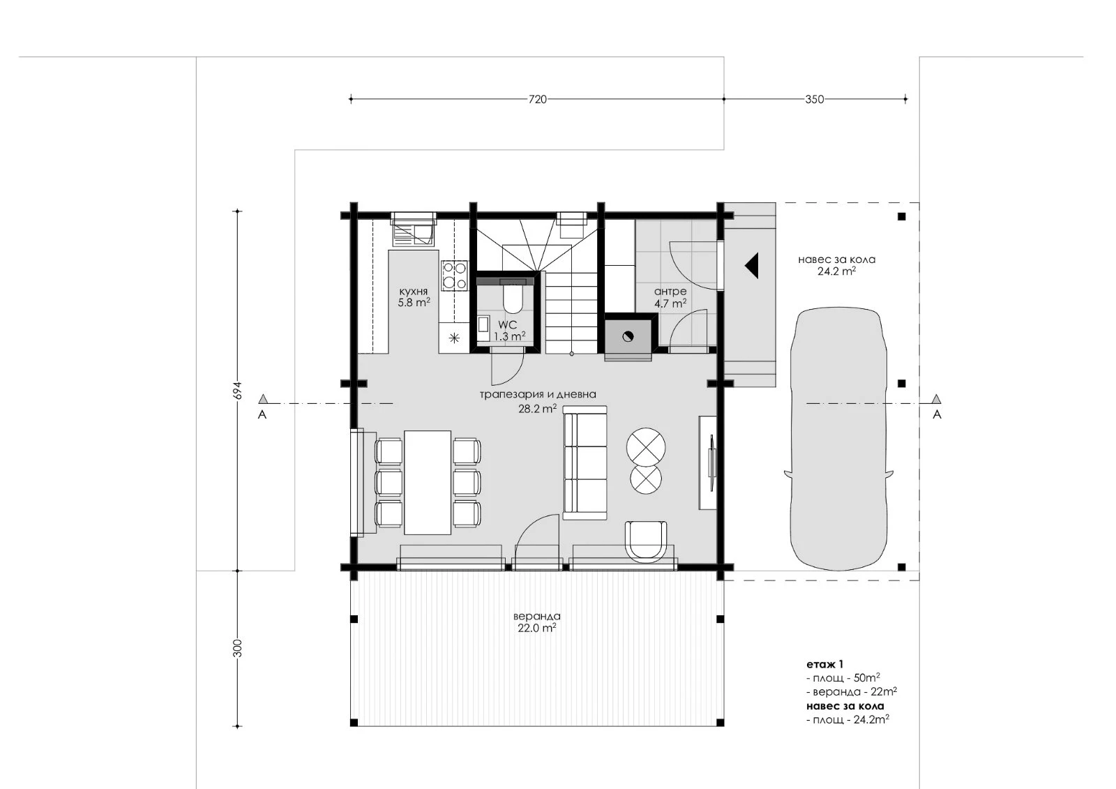
Разпределение:

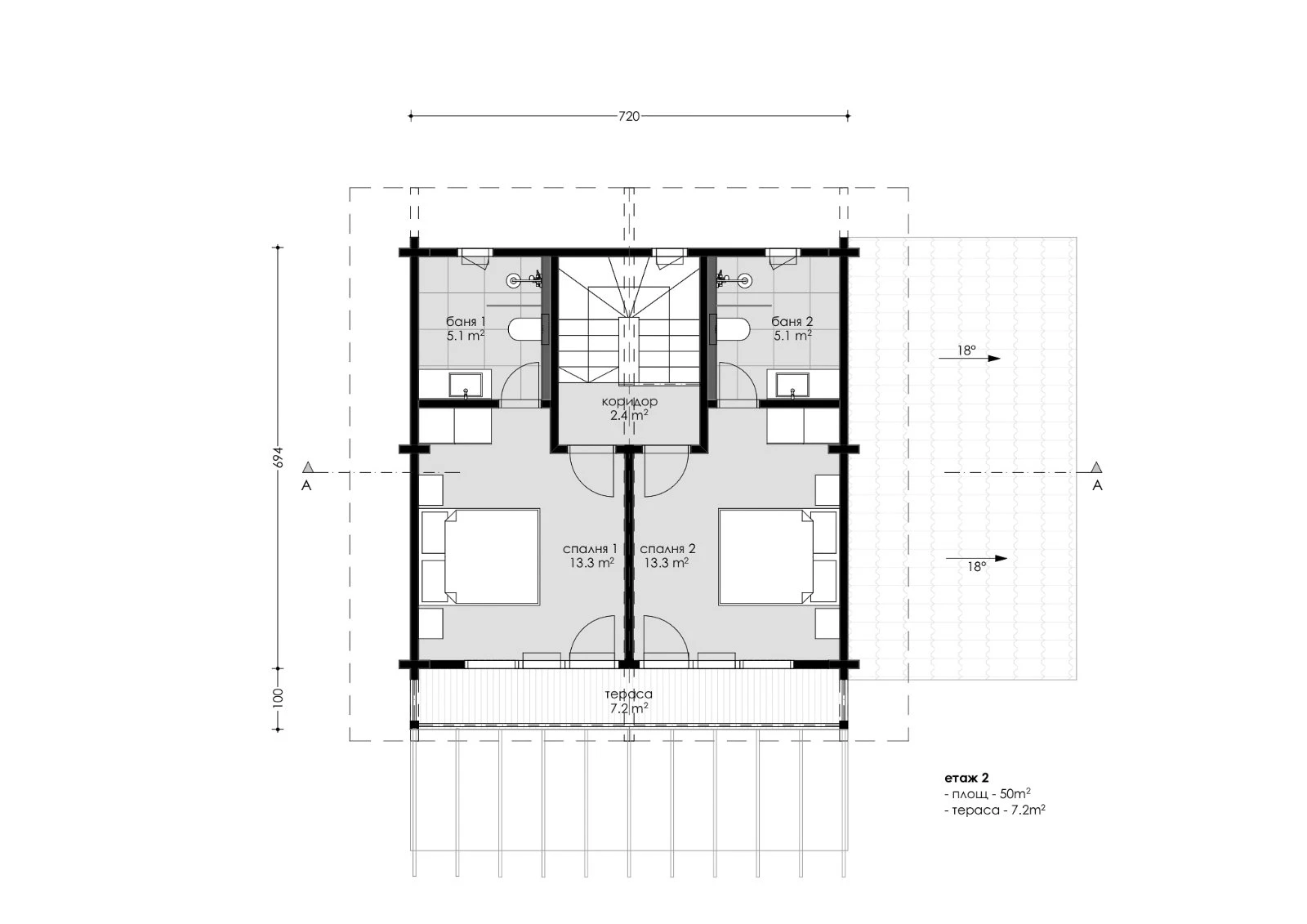
Втори етаж: три спални, две бани, уютна тераса към основната спалня – място за утринно кафе и гледка към деня.

Първи етаж: просторен хол с трапезария, работен кабинет, баня с тоалетна и широка веранда, която разширява дома навън – към светлината и зеленината.

 

Създадени за семейства, които:

Търсят естествен баланс – близост до столицата, но далеч от шума

Искат децата им да растат свободни, на открито, в среда, която вдъхновява

Ценят чистия въздух, уюта на дървото и топлината на домашното пространство

Работят с гъвкаво време или от вкъщи и търсят не просто квадратура, а качество на живот

 

Вярваме, че домът трябва да е продължение на човека – спокоен, красив и истински.
Harmony House – Комплекс „Обеля“ е нашата покана към хора, които мислят и живеят осъзнато – с грижа към себе си, семейството и природата.

Галерия

Проектът е предназначен за семейства:

Които искат да жиеят далеч от градския шум, но близо от удобствата на столицата

които искат да подобрят качеството си на живот

които искат да предоставят възможност на децата си да живеят в по-добра среда, да играят навън сред природата
иматпрофесиисгъвкавоработновремеи възможност за работа от вкъщи, наслаждавайки се на чист въздух и красива панорама

  • 133-обеля-17471185542357.jpg
  • 133-viberизображение2025-06-0317-14-44-030-17489791104425.jpg
  • 133-photo2025-04-1415-50-48-17471184732367.jpg
  • 133-photo2025-04-1415-51-21-17489792846072.jpg
  • 133-harmonyhouse-1-17471193518526.jpg
  • 133-viberизображение2025-06-0321-06-16-690-17491269870901.jpg
  • 133-viberизображение2025-06-0321-06-16-637-17491269868802.jpg
  • 133-photo2025-06-0414-42-23-17491283024636.jpg
  • 133-photo2025-06-0414-34-05-1749128302675.jpg

Свържи се с нас

Телефон: 088 454  44 44


Имейл: info@harmonyhouse.bg 

Изпрати запитване