• Цели
  • Храбърско
  • За нас
  • Обеля
Harmonyhouse
  • Обеля
  • Храбърско
  • За нас
Kонсултация

 

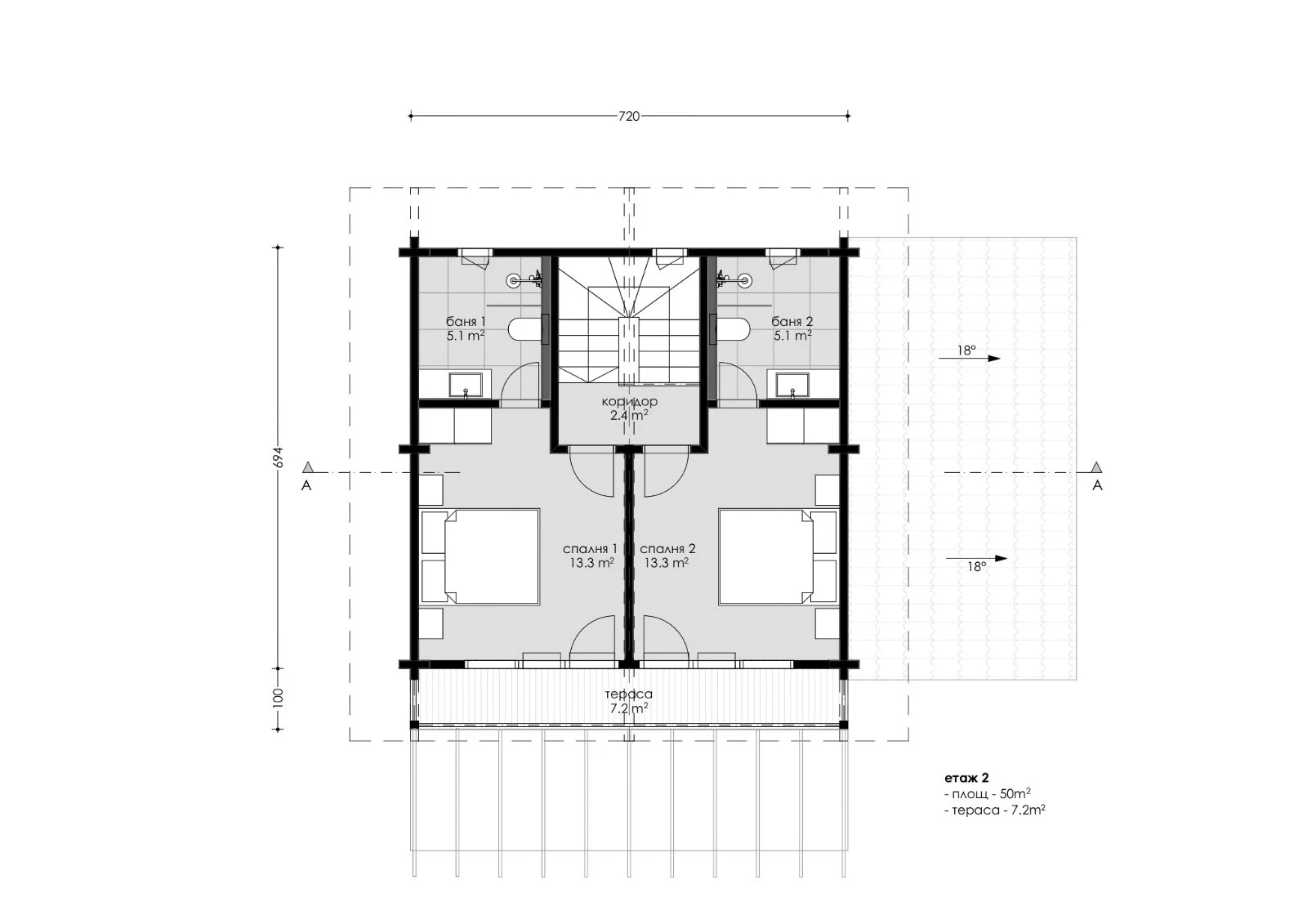
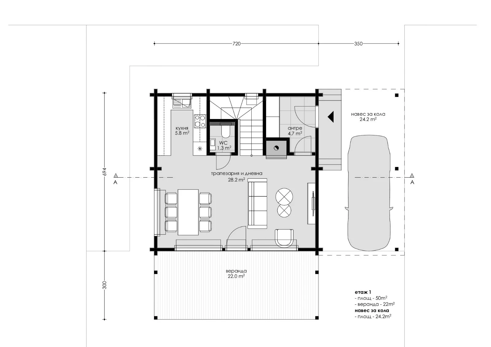
ПРОЕКТ КЪЩИ HONKA в ХРАБЪРСКО

Проектът е предназначен за семейства:  

 

  • Които искат да жиеят далеч от градския шум, но близо от удобствата на столицата
  • Които искат да подобрят качеството си на живот
  • Които искат да предоставят възможност на децата си да живеят в по-добра среда, да играят навън сред природата
  • Имат професии с гъвкаво работно време и възможност за работа от вкъщи, наслаждавайки се на чист въздух и красивапанорама

 

 

Локация:

 

  • Самостоятелни терени /УПИ/ с къща в с. Храбърско
  • Намира се на 28 км. и 30 мин. с кола до центъра на София, около 20 мин. до метростанция Люлин и на 5 мин от гр. Божурище
  • Терените са слънчеви с гледка към Витоша, Вискяр и Стара планина

 

 

  • Детски градини и училища - основно и средно
  • Възможност за спортни занимания: колело, конна езда, тенис и спортен риболов
  • Покупки: магазини Метро, Аiko, Mr. Bricolage и други по-малки магазини и
    аптеки в Божурище
  • 105-2022e07859604a3388bd796a223ff02c1-17491268386596.jpg
  • 105-e043b43a7ba7458695c475d18151d1161-17491268388179.jpg
  • 105-b930a9c0a82849ce9201454ab55880761-17491268386458.jpg
  • 105-64e2f542caea42f7823beafbcd44baea-17491268386843.jpg

 

• Всяка къща е разположена на самостоятелен терен от 550 кв.м
• С възможност за собствен водоизточник и фотоволтаична система
• Възможност за гараж или навес за 1 или 2 коли
• Външно барбекю
• Ароматно-кулинарен сектор
• Детски кът
• Външна сауна
• Друго по избор на клиента

 

  • 114-viberизображение2025-06-0321-06-16-637-17491269868802.jpg
  • 114-viberизображение2025-06-0321-11-16-934-1749126986908.jpg
  • 114-viberизображение2025-06-0321-06-16-690-17491269870901.jpg
  • 114-viberизображение2025-06-0321-06-16-565-17491269869054.jpg